Landscape Road, Warlingham

Sold Subject to Contract Guide Price £850,000

3
CHAIN FREE - This spacious detached bungalow occupies a fantastic corner position being well screened from the road by mature hedging. Sitting on the corner of Homefield Road and Landscape Road this desirable setting is a rare find. The property is well planned with 2 lovely large reception rooms, the lounge enjoying front to back aspects. The kitchen is a great size with separate utility room, all found off a bright and spacious hallway. Separately are the 3 bedrooms along with a family bathroom which is modern and again very spacious. Internal modernisation and updating is required. To the side of the property and approached by a wide driveway is a detached garage along with parking for several cars. Without doubt one of the main features of this lovely home are the beautiful mature and established level gardens which wrap themselves around the property and offer a high degree of privacy with an array of shrubs and bushes along with generous lawn areas. In summary this is an amazing opportunity to acquire a superb detached bungalow with accommodation approaching 2000 sq ft on a bold prominent cornet plot and within a most prestigious residential road.



Council Tax Band G
  • Superb, Sought After Location
  • Beautiful Level / Mature Corner Plot
  • Detached Bungalow
  • 3 Bedrooms
  • 2 Large Reception Rooms
  • Detached Tandem Garage
  • Requires Updating & Scope for Extension
  • Vacant Possesion
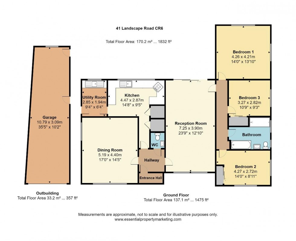
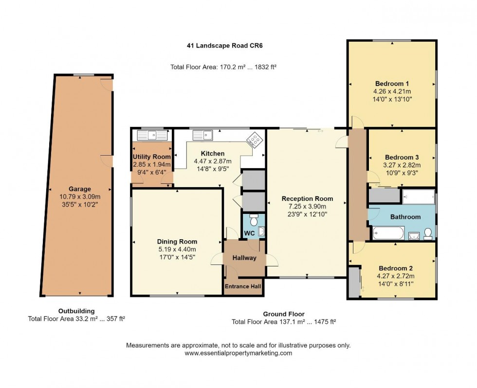
Floorplan for Landscape Road, Warlingham
EPC Graph for Landscape Road, Warlingham
Similar Properties

Get an instant online valuation

Find out how much your property is worth