Court Farm Road, Warlingham

For Sale Offers in Excess of £825,000

4
Hubbard Torlot is pleased to bring to market a four bed detached house with two bathrooms and impressive views. Located within a quiet cul-de-sac within walking distance of Upper Warlingham Station. The property has been extended in the past to provide a spacious and plentiful accommodation.



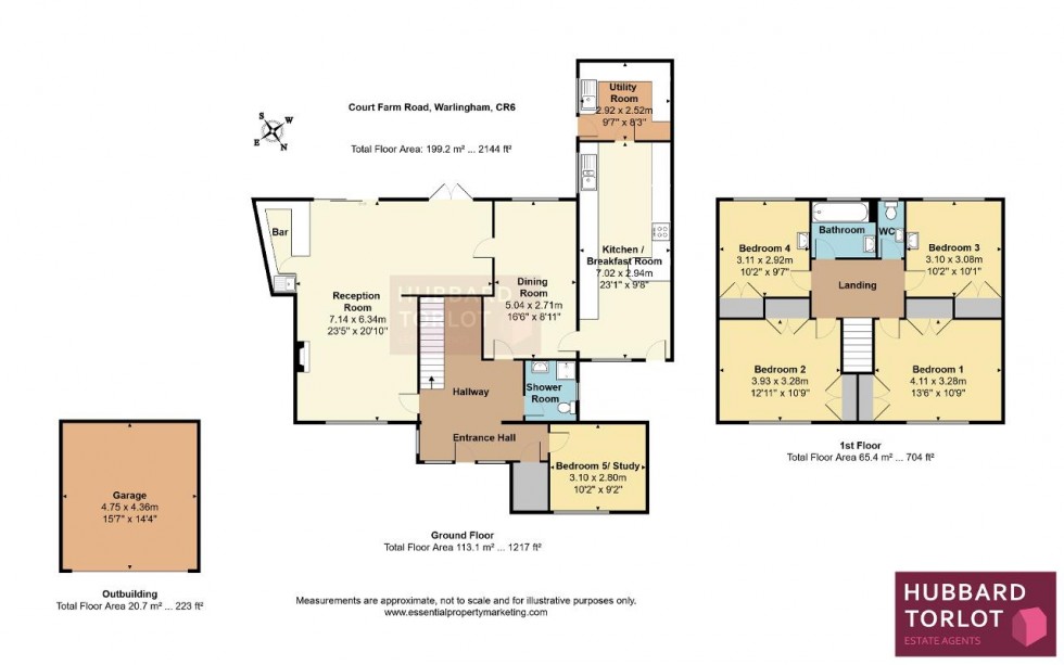
To the ground floor there are three reception rooms plus a large kitchen/breakfast room. The lounge is double aspect with views to the front and the rear, is L-shaped and leads directly to the rear garden. Additionally there is a bar area, which could be adapted to a study nook if required.



Separating off the spacious entrance hall is a good sized dining room and separate study, which if desired can be used as a fifth bedroom as there is a shower room next to this room. The kitchen is completely tilled until separate breakfast area, having been extended with footings to go above if further expansion is required. Off the kitchen is a useful utility room. To the first floor are four double bedrooms all with fitted wardrobes, a family bathroom and separate WC.



Externally is a fabulous sized rear garden ideal for families and entertaining. The garden is mainly land to lawn for ease of maintenance, along with mature shrub and hedge borders. There is a large patio area and garden shed/summer house and a double sized integral garage. Completing this wonderful family home is a driveway with parking for several cars.
  • Spacious 4-Bedroom Detached Home
  • Modern Kitchen with Utility Room
  • Double Aspect Lounge with Garden Access
  • Generous Rear Garden
  • Integral Double Garage and Driveway
  • Versatile Bar Area
  • Luxurious Bathrooms
  • Walking Distance to Upper Warlingham
Floorplan for Court Farm Road, Warlingham
EPC Graph for Court Farm Road, Warlingham
Similar Properties

Get an instant online valuation

Find out how much your property is worth