Heathhurst Road, South Croydon

For Sale £950,000

6
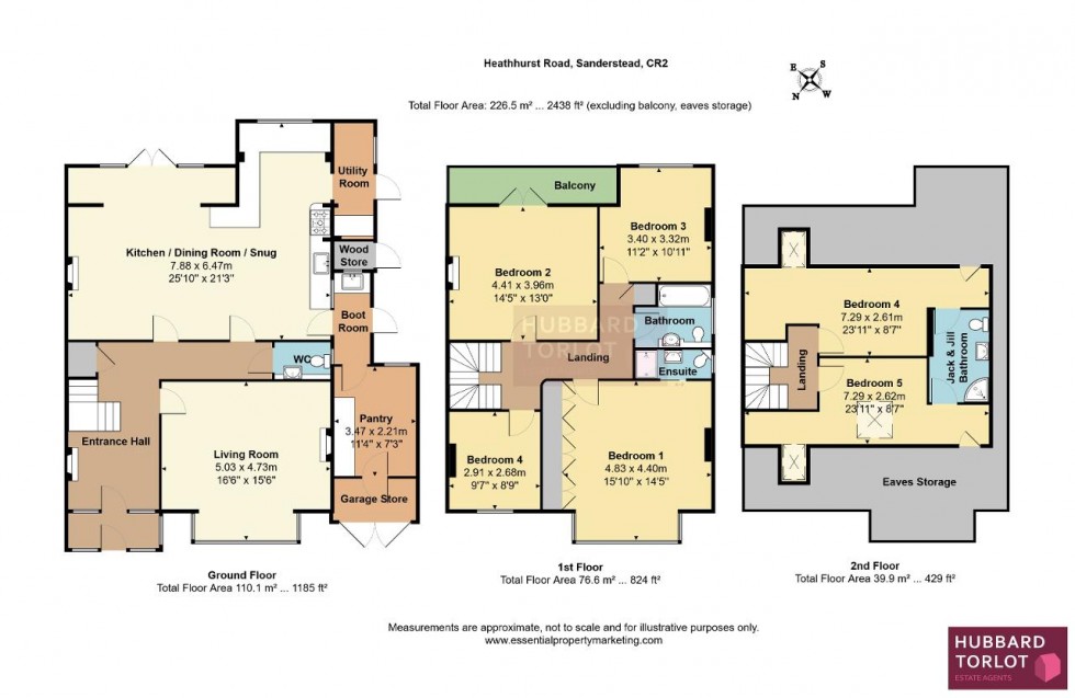
An exceptionally large and highly sought-after period semi, beautifully presented with a stunning interior that blends character with contemporary open-plan living. The property is approached via a large entrance porch boasting the most attactive stained glass windows with solid period internal door to an inviting and impressive entrance hall, complete with wood flooring, an attractive fireplace and beautiful ornate features, immediately setting the tone for the space and elegance found throughout.

The ground floor offers two generous reception rooms. The front lounge is a true highlight, featuring high ceilings, a large period bay window and a fabulous wood-burning stove, creating a warm and welcoming retreat. The second reception room has been opened up to the kitchen now providing a wonderful space, highly desired for family get togethers in keeping with modern living.

The kitchen/diner/snug is the heart of the home and the current owners have created an impressive, well-fitted and characterful space. This superb everyday family space flows naturally out to the rear garden, ideal for those who like to entertain. Complementing this are a separate utility room and an additional WC/cloakroom. There is also a substantial store room on the ground floor, currently offering excellent storage as a large pantry space but equally suited to conversion into a home gym if desired.

A striking turning staircase leads to a spacious first-floor landing, providing access to four well-proportioned double bedrooms. Bedroom 2 enjoys a private balcony, creating a peaceful spot for morning coffee. The principal bedroom benefits from a modern en-suite shower room, while a stylish family bathroom with modern fittings serves the remaining bedrooms on this floor.

A further staircase rises to the top floor, where two additional good-sized bedrooms are located along with an additional 'Jack & Jill ' shower room. Both enjoy stunning views and offer flexible use, with either making an ideal additional home office or guest accommodation.

Outside, the rear garden is a superb and versatile space, featuring multiple seating areas, lawned sections, and mature hedging and shrub borders that provide both privacy and greenery. A charming summerhouse offers the perfect setting for relaxed summer evenings.

To the front, a double driveway provides off-road parking for two vehicles, alongside access to the remaining garage, ideal for bike storage and general use. Beyond this is the large storage/gym room, which could very easily be converted back into a full-size garage if preferred. To the front is an EV car charger.
  • Stunning Period Edwardian Home
  • Walking Distance to 2 Stations
  • Magnificent Open Kitchen/Diner/Snug
  • Superb Lounge with wood burner
  • Inviting & Impressive Entrance Hall
  • 6 Bedrooms & 3 Bathrooms
  • Landscaped Rear Garden & Summer House
  • Utility Room & Storage Room/Garage
Floorplan for Heathhurst Road, South Croydon
EPC Graph for Heathhurst Road, South Croydon
Similar Properties

Get an instant online valuation

Find out how much your property is worth