Ingham Road, South Croydon

Sold Subject to Contract £550,000

3
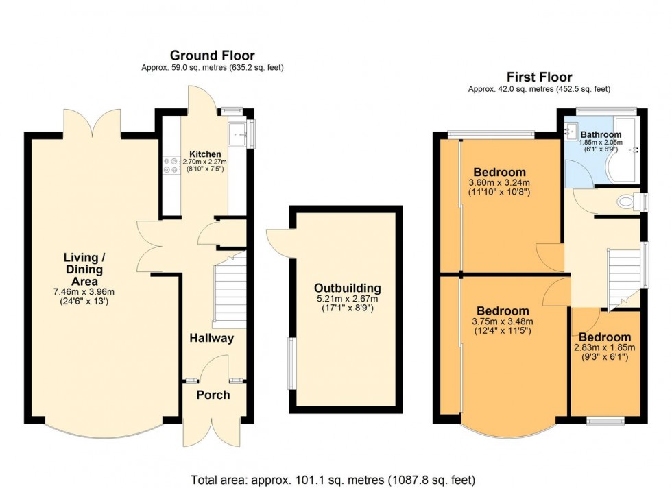
NO ONWARD CHAIN - We are pleased to bring to the market this lovely three bedroom semi detached home situated in a quiet cul-de-sac, within easy reach of local amenities. The property is spacious and well presented, featuring a large through living/dining room and a modern fitted kitchen with granite worktops and integrated appliances, including a washing machine, oven, gas hob, fridge/freezer, and microwave. Upstairs are three bedrooms, two of which are generous doubles with attractive fitted wardrobes. The third bedroom benefits from fitted units. The family bathroom includes a bath with a shower over. Externally, the property offers a well-maintained rear garden with a block-paved patio area and lawn. The former garage has been converted to provide flexible additional space, ideal for use as a study or gym. There is also off-street parking to the front. Council Tax Band E.
  • 3 bedroom semi detached house
  • Large living room / dining room
  • Modern Fitted Kitchen
  • Modern Bathroom
  • Bedrooms with fitted wardrobes
  • Garage converted to office / playroom
  • Off Street Parking
  • Gas Central Heating
Floorplan for Selsdon, South Croydon
EPC Graph for Selsdon, South Croydon
Similar Properties

Get an instant online valuation

Find out how much your property is worth