Bankside, South Croydon

For Sale Offers in Excess of £1,250,000

5
Hubbard Torlot are delighted to bring to the market this impressive detached and extended four/five bedroom detached family home with a gated driveway.

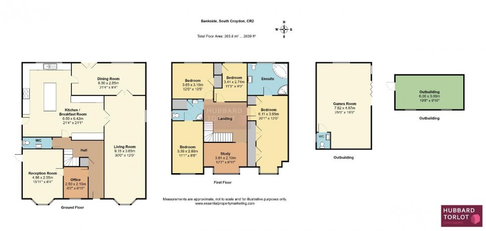
On the ground floor is an entrance hall leading to a spacious living room with doors to a separate dining room overlooking the garden, particularly spacious luxury fitted kitchen/breakfast room, additional ground floor reception room/bedroom, home office and a cloakroom.

On the first floor is a principal bedroom suite with en-suite bathroom, three further double bedrooms, 'Jack and Jill' family shower room and a study area.

Externally is a lovely landscaped rear garden, the main area is laid to lawn with mature planting to borders and a paved patio area suitable for entertaining. Steps lead down to a further garden area, with two detached outbuildings, one currently used as a superb games room and the other a summer house.

An internal viewing is strongly recommended to fully appreciate this impressive family home in an enviable location.



Council Tax band F
  • Sought After location
  • Superb Family Accommodation
  • Impressive Fitted Kitchen/Breakfast Room
  • Three Reception Rooms
  • Study / Office
  • Principal Bedroom Suite
  • Three / Four Further Bedrooms
  • Modern Shower Room
Floorplan for Bankside, South Croydon
EPC Graph for Bankside, South Croydon
Similar Properties

Get an instant online valuation

Find out how much your property is worth