Harewood Gardens, Sanderstead

For Sale Offers in Excess of £650,000

5
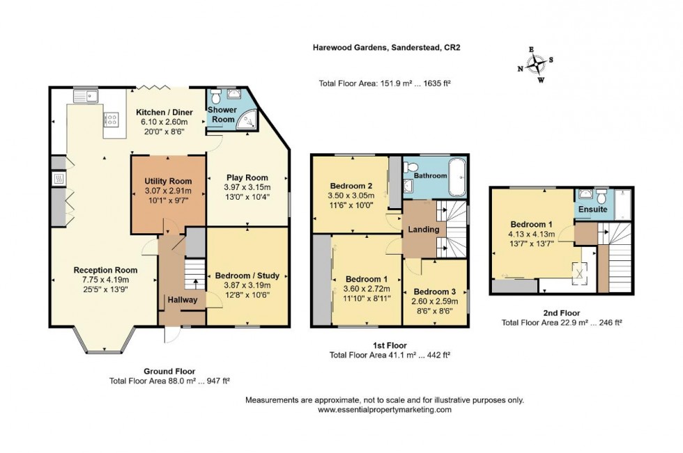
CHAIN FREE - Hubbard Torlot are delighted to bring to the market this greatly improved and substantially extended five bedroom semi detached family home which enjoys an enviable position set back from the toad and close to some great local amenities. The property boasts an incredibly spacious interior throughout over three floors and comprises hallway, impressive kitchen / diner with integrated appliances and breakfast bar, skylight and bi fold doors leading out to the rear garden, utility room, bay fronted lounge area, play room, shower room and a ground floor bedroom. The property continues to impress with three bedrooms and a family bathroom on the first floor and completing the impressive accommodation is a principal suite with an en suite shower room on the top floor.

External is a good size level rear garden with patio, astro turf and side access to a good size frontage.

An internal viewing is strongly recommended to fully appreciate this great family home.



Council Tax Band D
  • Chain Free
  • Superb Family Accommodation
  • Five bedrooms
  • Three Bathrooms
  • Popular Location
  • Close To local Amenities
  • Viewing Recommended
Floorplan for Harewood Gardens, Sanderstead
EPC Graph for Harewood Gardens, Sanderstead
Similar Properties

Get an instant online valuation

Find out how much your property is worth