Norman Avenue, South Croydon

For Sale £825,000

5
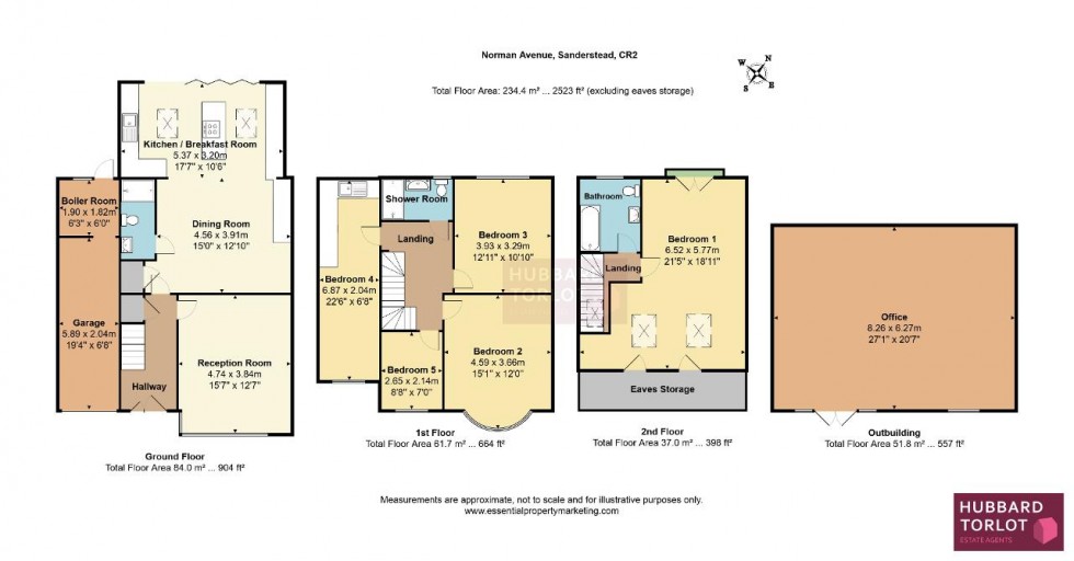
This beautifully presented 1930s semi-detached home has been thoughtfully and extensively extended to offer approximately 2,000 sq ft of versatile accommodation, arranged over three floors—perfectly suited to modern family living or an extended household.



The ground floor opens with a spacious and welcoming entrance hallway, leading through to a charming front lounge featuring a deep, square bay window that floods the room with natural light. To the rear, the property truly comes into its own with an impressive open-plan kitchen, dining, and family area—designed with both everyday living and entertaining in mind. This stunning space includes a large breakfast bar, ample room for a generous dining table and relaxed seating area, and bi-fold doors that seamlessly connect the interior to the rear garden.



To the first floor are four well-proportioned double bedrooms. One of these is currently fitted and utilised as a utility room, complete with plumbing; however, the current owners are happy to revert this back to a bedroom if preferred. A stylish and contemporary family bathroom completes this level.



Occupying the entire top floor is a magnificent principal bedroom suite, featuring a Juliet balcony and Velux windows that provide elevated views and an abundance of natural light. This floor also benefits from a separate luxury bathroom, creating a private and tranquil retreat.



Externally, the property continues to impress. The rear garden is level and well-maintained, and includes a versatile garden room with power and lighting—ideal for use as a home office, gym, or studio. To the front, a recently paved driveway provides off-road parking for up to three or four vehicles.
  • Superbly Extended Family Home
  • Five Spacious Bedrooms
  • Three Modern Re-Fitted Bathrooms
  • Wonderful Kitchen/Diner/Family Room
  • Large Separate Lounge
  • Garden with Garden Room/Home Office
  • Solar Panels & 'A' Rating EPC
  • Driveway Parking for 3/4 Cars
Floorplan for Norman Avenue, South Croydon
EPC Graph for Norman Avenue, South Croydon
Similar Properties

Get an instant online valuation

Find out how much your property is worth